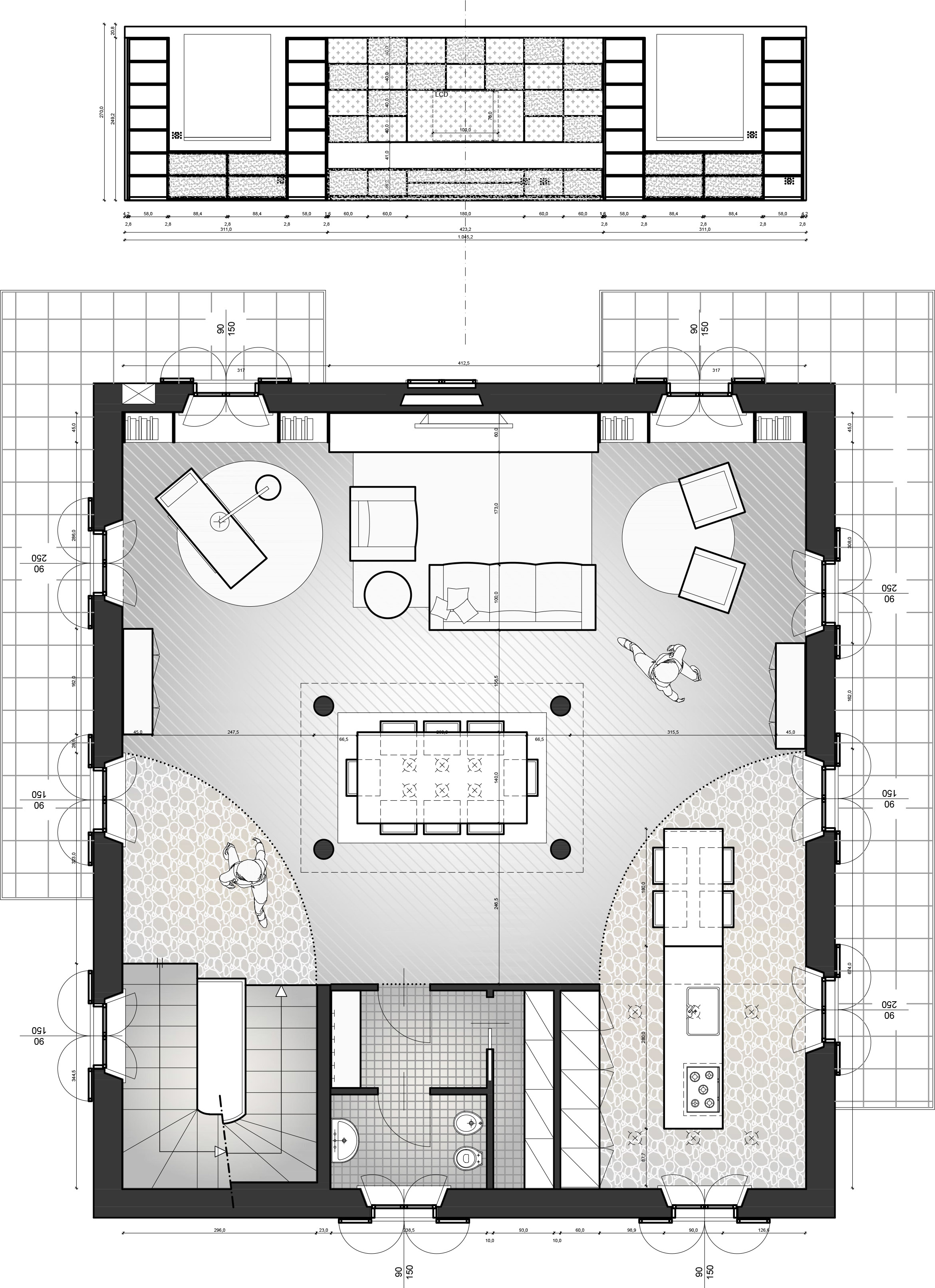
Parete soggiorno
Si tratta di un progetto di interior design in una villa di lusso.
In particolare il lavoro presentato è la porzione della parete del soggiorno nella quale convivono la libreria, la zona TV e stereo e 2 finestre che affacciano sul girdino interno.



